New-build eco development

Dorset, UK: 2019

Brief

 

Master planning

• Architectural design proposals

• Detailed planning application content

• Development marketing pack

Existing site

 

• 0.36ac site (0.147ha)

• 900sqft 1950s bungalow + garage

• 17no trees  • Good sand soil:

• 2º incline east to west

Existing site plan

Proposed site plan

Master planning

 

Removing existing buildings and retaining 9no TPO trees the site was most effective divided in to three roughly equal sized plots.

Architectural proposal

 

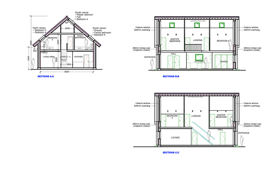
Create three elegant hempcrete insulated timber frame chalet bungalows in keeping with the character of the area, finished in render, Douglas Fir and local stone cladding.

Elements & energy features

 

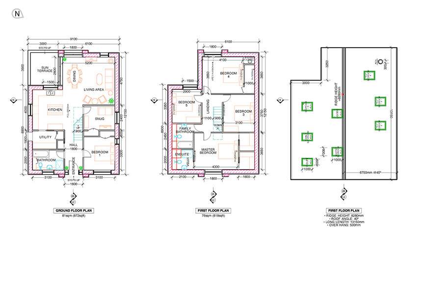
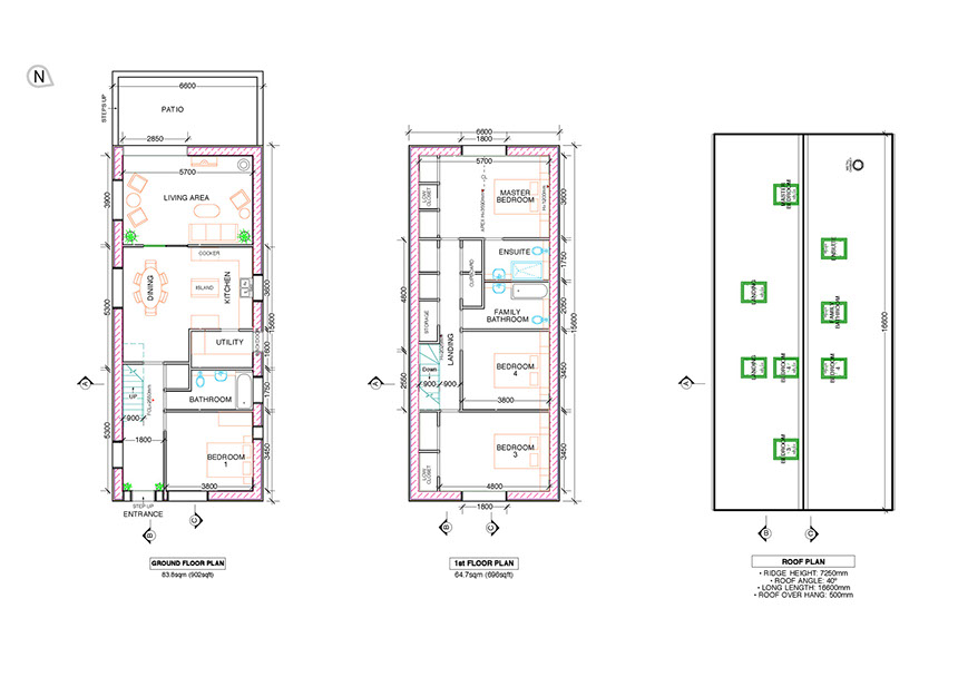
• 3no 0.12ac plots

• 3no 1700sqft chalet bungalows

• 2no architectural designs

• Off set privacy patio positions

• Double height feature windows

• Vertical Douglas Fir cladding

 

 

• Triple glazing

• Fully integrated solar roof tiles

• Air source heat pumps

• Heat and electric battery storage

• Electric car charging

• Recycled car tire roof tiles.

Gabion cage foundations

Hempcrete shutter casting

Vertical Douglas Fir cladding

Hempcrete: 'Better than carbon negative and ultra low fuel bills'

 

At a thickness of 350mm hempcrete achieves an insulation u-value of 0.17 W/m2K and a thermal mass capable of maintaining an internal ambient temperature of 14ºc (56ºf) irrespective of external temperature.

 

Embodying more carbon than it takes to produce, and actively continuing to capture carbon over it's life time as 'it breathes', a hempcrete house is an exceptional ecological and economical building solution, requiring minimal heating, cooling and ventilation whilst achieving ultra low running costs.

Project status

Sold on to new developer: May 2019

Concept images

 

 

design@number39.co.uk

+447940925738